Denah Rumah Minimalis Mungil Indah
Denah Rumah Minimalis Mungil - Dalam menciptakan perencanaan dalam membangun rumah kita butuh perhatian khusus, yaitu memperkirakan semua hal yang akan terjadi. Mulai dari ukuran rumah dan ukuran dalam sehingga rumah benar-benar dapat diatur dan ditata dengan rapi. Karena salah satu bentuk dan ciri-ciri rumah minimalis yaitu tertata dan tersusun dengan rapi dan mengeluarkan suasana nyaman.
Desain Denah rumah minimalis saja belum dapat menciptakan rumah terlihat indah atau terkesan mewah, tetapi hal ini sangat tergantung pada desain interior rumah dan lampu atau pencahayaan dalam rumah serta model furniture yang diterapkan. Misalnya rumah yang memakai pencahayaan remang-remang lebih terkesan glamor ketimbang rumah yang pencahayaannya terang. Jadi, rumah yang glamor tidak hanya dari mahalnya peralatannya saja tetapi juga sangat tergantung dalam desain interiornya.
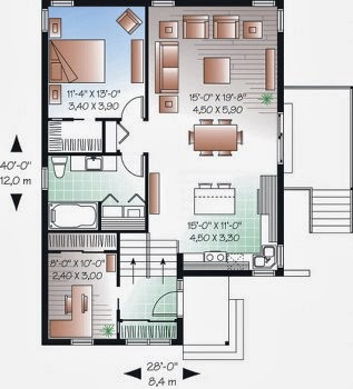
Berikut kami berikan beberpa bentuk denah rumah minimalis, mulai dari rumah mungil minimalis, besar dan lain-lain. Ada banyak pilihan ruah dan model rumah minimalis yang dapat membantu anda dalam memilih inspirasi mendesain denah rumah minimalis cantik.
Desain Denah rumah minimalis saja belum dapat menciptakan rumah terlihat indah atau terkesan mewah, tetapi hal ini sangat tergantung pada desain interior rumah dan lampu atau pencahayaan dalam rumah serta model furniture yang diterapkan. Misalnya rumah yang memakai pencahayaan remang-remang lebih terkesan glamor ketimbang rumah yang pencahayaannya terang. Jadi, rumah yang glamor tidak hanya dari mahalnya peralatannya saja tetapi juga sangat tergantung dalam desain interiornya.
Berikut kami berikan beberpa bentuk denah rumah minimalis, mulai dari rumah mungil minimalis, besar dan lain-lain. Ada banyak pilihan ruah dan model rumah minimalis yang dapat membantu anda dalam memilih inspirasi mendesain denah rumah minimalis cantik.







0 Response to "Denah Rumah Minimalis Mungil Indah"
Posting Komentar